Interior design photos of restaurant entry vestibule and lobby with rich burgundy wine colored painted walls, light olive green painted accent walls, Dal-Tile manufactured sone chiseled ready stack Spring Moss color natural stone accent wall with 3Form poured green glass portal and natural pine wood planks for bench door pull and sign lettering  by Centre Street Creative
Entry vestibule and lobby
Interior design photo of restaurant dining room with natural color Dal-Tile stone and painted walls, weathered cedar table tops and dining room chairs by  and chair finishes, pale olive upholstery, painted accent walls and digital display artwork featuring collection of outdoor scenery of Great Falls, Virginia historical park site,
Dining room
Interior design photo of restaurant dining bar, Hunter Douglas accoustic ceiling clouds, sandblasted green marble top with burgundy and white marble veining and wheathered cedar finsh bar stool furnishings
Tavern Room
Elevation rendering of the Tavern at River Falls restaurant facade with wine colored standing seam roof, full height french door multi pane glass doors leading to dining patio and array of restaurant and next door Market signage compatibility by Mark Ksiazewski at Centre Street Creative
Front elevation
Color rendering of the interior floor space plan and seating, dining bar and kitchen area layout by Centre Street Creative facilities planning
Floor plan
Interior design photo of restaurant dining bar seating, gold leaf flecked pendant lighting, overhead storage shelving using brass and stainless steel woven metal mesh by Banker wire and Iron works, sandblasted green marble bar top, digital artwork collection and veneer stone wall panels by Centre Street Creative restaurant design
Tavern room dining bar
Interior design photo of restaurant dining room with Dal-Tile natural color stone and Benjamin Moore and Valspar painted walls, weathered cedar table tops and GAR Parker chair finishes, Marharam and Stinson pale olive fabric and vinyl upholstery, Plyboo millwork wood frames, Hunter Douglas Techstyle ceiling panels and digital display artwork featuring collection of outdoor scenery of Great Falls, Virginia historical park site,
Dining room
The Tavern at River Falls restaurant interior design finish and materials  presentation with 10 paint Benjamin Moore and Valspar colors ranging from warm stone color neutrals, medium umber tones, rich burgundy wine color and three shades of olive, marble and Dal-Tile manufactured chiseled ready stack spring moss stone veneer and Dal-tile Monticito Brune and Dal-Tile Timber Glen Cocoa ceramic tile finishes, Maharam or Stinson upholstery fabrics in burgundy and olive combinations, poured green glass by 3Form, natural wood finishes of weathered cedar, plank pine and Plyboo veneer plywood, Pionite suede beige linen and suede graphite talc laminates, lighting fixtures Hampstead Lighting Roty 2, Stacy Garcia Avocado Stripe 20 inch, Forecast Lighting Capitola Amber Bell Pendant, brass and stainless steel woven metal mesh by Banker wire and Iron works, sandblasted green marble bar top,
Finish and materials
Restaurant interior design context elevations rendered with color materials and finishes artwork and furniture sampling by Centre Street Creative
Context elevations
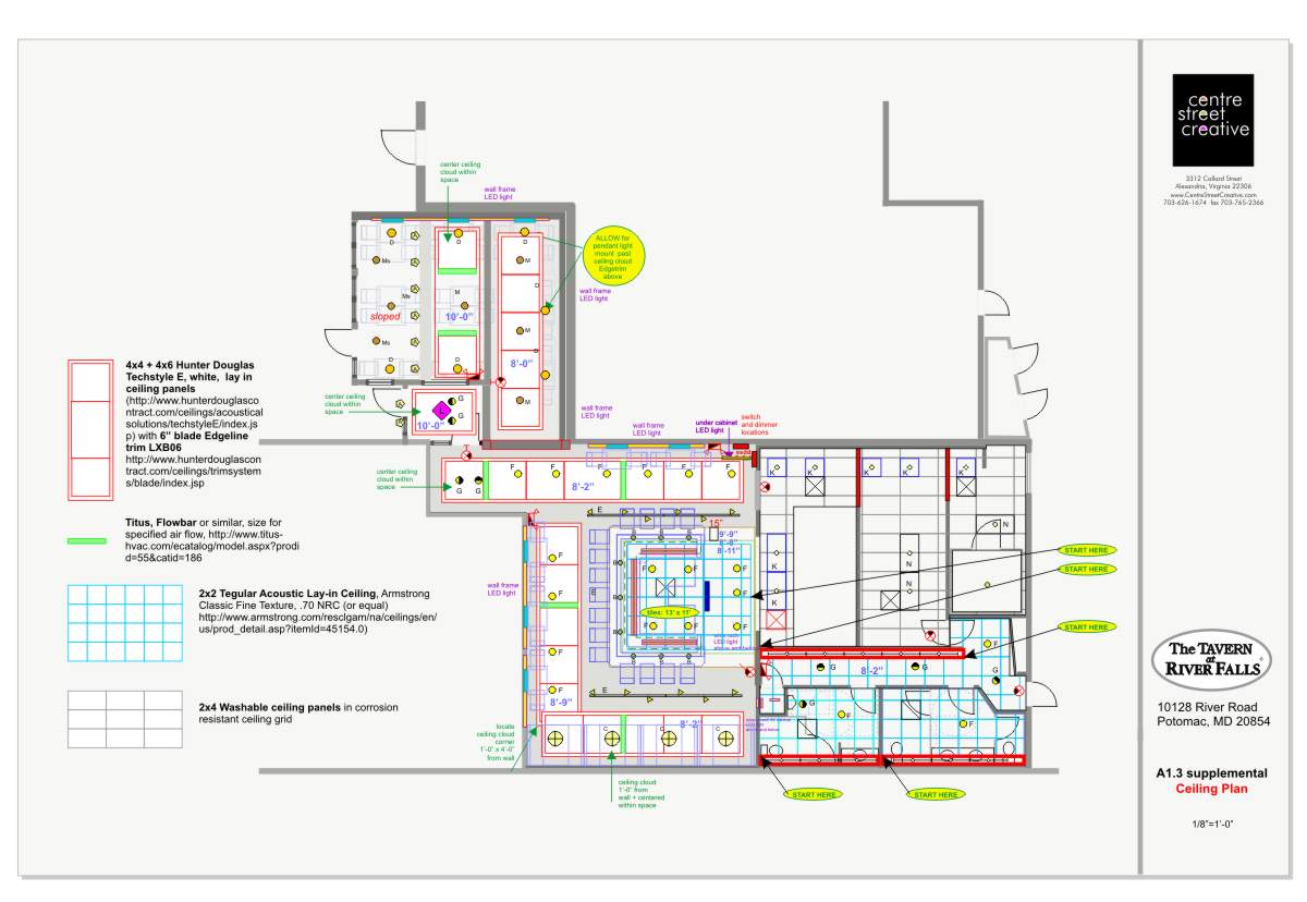
Restaurant interior design ceiling plan by Centre Street Creative
Ceiling plan
Graphic design for restaurant menu business cards gift cards and t shirts by Centre Street Creative
Collateral graphics
interior design tile patterns for restrooms using Dal-Tile Porcealto ceramic tile by Centre Street Creative
Restroom tile patterns