Photo of Balducci’s Food Lover’s Market storefront green awnings and green backlit logo sign at Lincoln Square New York City
Facilities design and project management
Photos of Balducci’s Food Lover’s Market re-branding storefront signage of existing facilities in Bethesda Maryland, Chelsea New York City, Scarsdale New York Westport Connecticut
Re-branding existing facilities
Rendering of sample elevations and finish material studies for Balducci’s specialty food grocery interior theming design by Centre Street Creative
Interior design theming
Space plan concept development for Balducci’s specialty food market by Centre Street Creative at Tenley Circle, Washington DC
Concept development and space planning
Floor plan showing Balducci’s specialty food market space planning and merchandising efficiency study in Westport Connecticut by Centre Street Creative
Merchandising efficiency studies
floor plan showing Balducci’s Westport, Connecticut
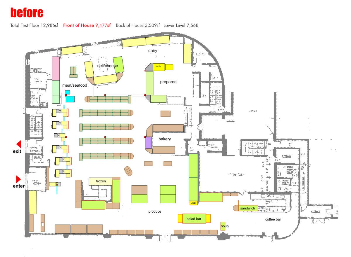
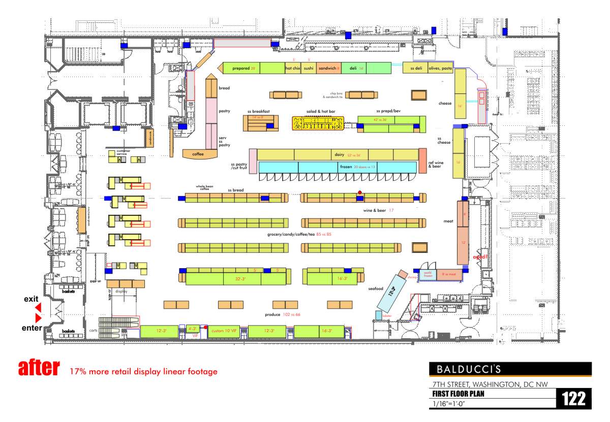
Space plan feasibility concept development for Balducci’s Food Lover’s Market Seventh Street Washington, DC by Centre Street Creative
Market reconfiguration planning
Space plan feasibility concept development for Balducci’s Food Lover’s Market Atlanta, Georgia by Centre Street Creative
Project development and renovation budgeting
Storefront and interior elevation concept drawings for Balducci’s Food Lover’s Market at JFK International Airport HMSHost by Centre Street Creative
Prototype design
Concept floor plan for Balducci’s Food Lover’s Market feasibility space planning at JFK International Airport HMSHost by Centre Street Creative
Fixture planning, design development, detailing, specification and procurement
Concept feasibility space planning for Balducci’s Food Lover’s Market  for The Shops at the Plaza by Centre Street Creative
Speculative location planning and presentation